0 bedroom Building Plot / Land
Sold
£ 799,000
Details
Development Site Bramford, Near Ipswich
Bedrooms : 0
Acres : 0.00 - sq ft
Acres : 0.00 - sq ft
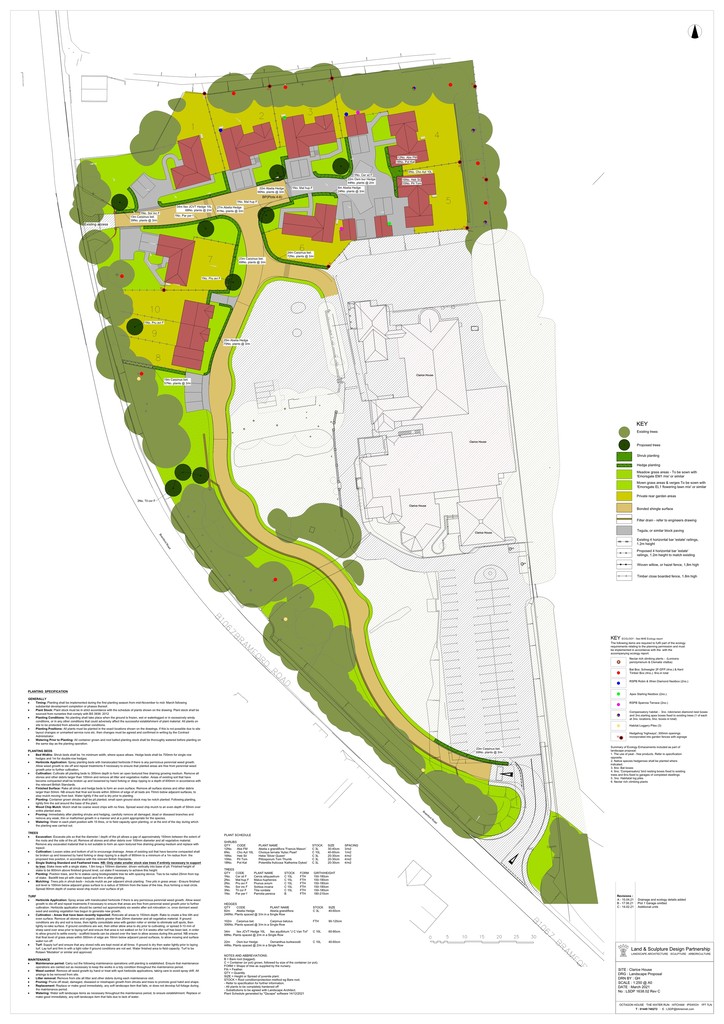
An exciting opportunity to acquire an exclusive development site in Bramford with detailed planning consent for 7 market homes and three affordable homes.
Floor Plans
Property Feature
Seven Market Homes And Three Affordable Homes
Two Detached 4 / 5 Bedroom Houses, One With Single Garage, One With Double Garage
Two Detached Split Level 4 Bedroom, Each With Double Garage
Three Detached 3 Bedroom Bungalows, One With Double Garage And One With Single Garage
Two 1 Bedroom Bungalows At Discounted Market Rent
One 2 Bedroom House At Discounted Market Sale
Site Accessed Through Impressive Entrance Gates
Adjacent To Riverhills Health Club And Boutique Spa
Full Detailed Planning Consent
Mid Suffolk District Council Planning Application Number DC/19/00870
An exciting opportunity to acquire an exclusive development site in Bramford with Full Detailed Planning consent for 7 market homes and three affordable homes:
two detached 4 / 5 bedroom houses, one with single garage, one with double garage;
two detached split level 4 bedroom, each with double garage;
three detached 3 bedroom bungalows, one with double garage and one with single garage;
two one bedroom bungalows at discounted market rent:
one two bedroom house at discounted market sale
The private site, accessed through impressive entrance gates, is located adjacent to Riverhills Health Club and Boutique Spa and has mature hedges and trees on three sides. A residents', private vehicular exit roadway for the development is to be constructed.
Details can be found on Mid Suffolk District Council Planning Portal, application number DC/19/00870, associated documents can be viewed online at the Mid Suffolk Planning Portal.
CALL ECR PROPERTIES FOR FURTHER DETAILS 07767 327327 / 01449 711727
Bramford lies approximately three miles north west of Ipswich. The village offers a variety of shops, a pub, primary school, sports field, bowls club as well as other social groups. The river Gipping runs through the village with access to beautiful river walks.
Community Infrastruture Levy (CIL) All interested parties are advised to satisfy themselves of the CIL liability and the indexation calculation that applies. Details of how CIL is calculated can be found on Mid Suffolk website.
Services Services are available to the site. Potential buyers are advised to satisfy themselves of these, as well as their location and suitability.
Planning Conditions Potential buyers are requested to familiarise themselves with all conditions relevant to the approved consent and particularly those which must be adhered to prior to commencement of construction.
Viewings Strictly by arrangement with the agent
two detached 4 / 5 bedroom houses, one with single garage, one with double garage;
two detached split level 4 bedroom, each with double garage;
three detached 3 bedroom bungalows, one with double garage and one with single garage;
two one bedroom bungalows at discounted market rent:
one two bedroom house at discounted market sale
The private site, accessed through impressive entrance gates, is located adjacent to Riverhills Health Club and Boutique Spa and has mature hedges and trees on three sides. A residents', private vehicular exit roadway for the development is to be constructed.
Details can be found on Mid Suffolk District Council Planning Portal, application number DC/19/00870, associated documents can be viewed online at the Mid Suffolk Planning Portal.
CALL ECR PROPERTIES FOR FURTHER DETAILS 07767 327327 / 01449 711727
Bramford lies approximately three miles north west of Ipswich. The village offers a variety of shops, a pub, primary school, sports field, bowls club as well as other social groups. The river Gipping runs through the village with access to beautiful river walks.
Community Infrastruture Levy (CIL) All interested parties are advised to satisfy themselves of the CIL liability and the indexation calculation that applies. Details of how CIL is calculated can be found on Mid Suffolk website.
Services Services are available to the site. Potential buyers are advised to satisfy themselves of these, as well as their location and suitability.
Planning Conditions Potential buyers are requested to familiarise themselves with all conditions relevant to the approved consent and particularly those which must be adhered to prior to commencement of construction.
Viewings Strictly by arrangement with the agent
Properties in same Property type
4 bedroom Detached Bungalow
Sold
£ 735,000
Norfolk, Barroway Drove, Near Downham Market, Equestrian, Lifestyle, Outbuildings, Land
3 bedroom Barn Conversion
Sold
£ 725,000
Carmarthenshire Near Llandeilo Equestrian, Lifestyle, Land, Rural Living, Smallholding





















